2b
NEWS
PROJECTS
COMPETITION
2021
2020
2019
PASSERELLE MOBILITé DOUCE NYON
LOGEMENTS CONFIGNON
PLACE PERDTEMPS NYON
HEIMPLATZ ZüRICH
LOGEMENTS CITé UNIVERSITAIRE GENèVE
ESPACES PUBLICS GRANDS-ESSERTS
QUARTIER INTERGéNéRATIONNEL D’HABITATIONS D’ATHENAZ
2018
2017
2016
2015
2014
2013
2012
2011
2010
2009
2008
2007
2005
2003
URBAN
PUBLIC SPACE
ARCHITECTURE
TRANSFORMATION
STRUCTURE
OUTPUTS
ACADEMICS
CONTACTS
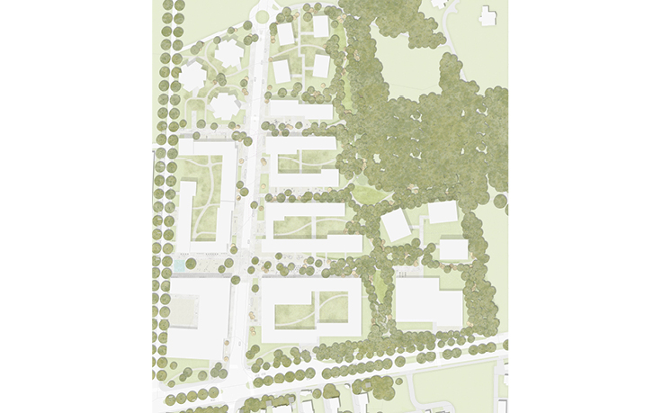
Espaces publics Grands-Esserts, Veyrier, Genève
1er prix
1er rang
Maître de l’ouvrage
Ville de Veyrier
Team 2b
S.Bender
Ph.Béboux
M.Okumura
Architecte paysagiste
bbz landschaftarchitekten, Berne
<<
<
idx
/
count
>