|
|
-
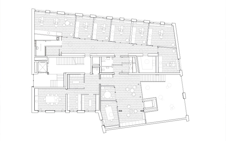
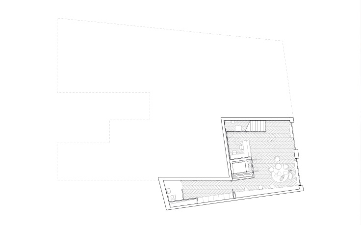
Clinique dentaire Du Lac
Morges
Projet 2018-2020
Réalisation 2020
Team 2b
S.Bender
Ph.Béboux
G.Ferretti
S.Greisinger
L.Millius
C.Ngambida
Direction des travaux
a.planir, Echallens
Images 3d
2b architectes, Lausanne
Photographe
Matthieu Gafsou, Lausanne
-
-
-
-
-
-
-
-
-
-
-
-
-
-
-
-
-
|