2b
NEWS
PROJECTS
COMPETITION
2025
2023
2021
LOGEMENTS POUR SENIORS ANIèRES
EXTENSION GROUPE SCOLAIRE CORSIER
2020
2019
2018
2017
2016
2015
2014
2013
2012
2011
2010
2009
2008
2007
2005
2003
URBAN
PUBLIC SPACE
ARCHITECTURE
TRANSFORMATION
STRUCTURE
OUTPUTS
ACADEMICS
CONTACTS
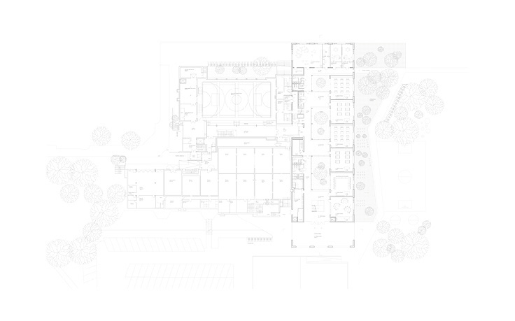
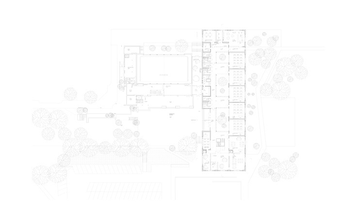
Extension Groupe scolaire, Corsier
1er rang
1er prix
Maître de l’ouvrage
Ville de Corsier
Team 2b
S.Bender
Ph.Béboux
G.Blettery
L.Hoser
J.Riondel
avec
Direction des travaux
Architech, Genève
Images 3D
2b architectes
<<
<
idx
/
count
>